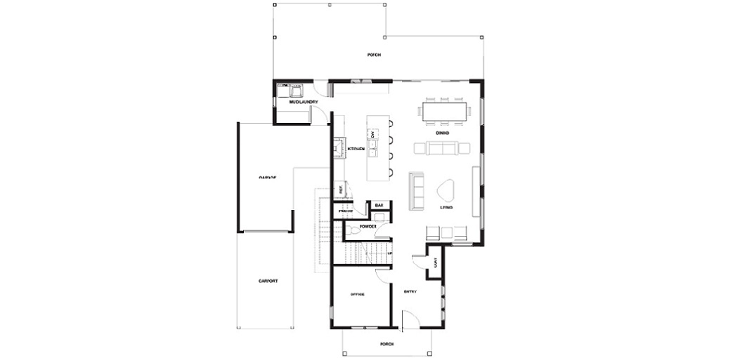
2104 Peach Tree St, Austin, TX 78704, USA

2104 Peachtree St. Austin TX

2104 Peachtree St.

Price: $1,650,000
Sq. Ft.: 2824
Beds: 3
Baths: 3.5
Deck & Patio Sq. Ft.: 
Parking: 
Pool: Yes, Built-in pool included
Completion Date: Coming available 2020
Terms and Conditions | Privacy Policy