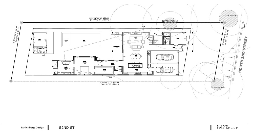
2007 S 2nd St, Austin, TX 78704, USA
2007 S. 2nd St., Austin, TX
2007 S. 2nd St w/Casita
Price: $TBD
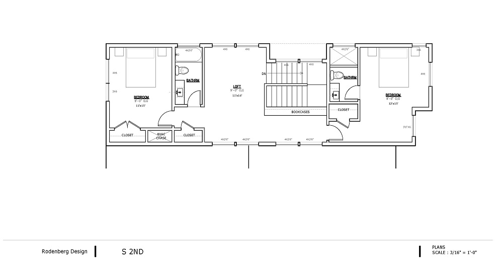
Sq. Ft.: 2929
Beds: 3
Baths: 4
Parking: 1-car Garage and 1-car Carport with Study
Pool: Built-in Heated Pool with Spa
Additional: Casita
Completion Date: Coming available 2022