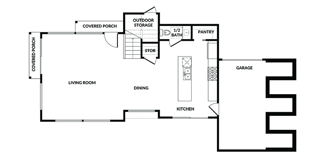
1908 Goodrich Ave, Austin, TX 78704, USA
1908 Goodrich Ave., Unit A, Austin, TX
1908 Goodrich Ave. Unit B
Price: $1,395,000
Sq. Ft.: 2059
Beds:
Baths:
Parking: 1-car Garage
Completion Date: Coming available 2020
1908 Goodrich Ave., Unit A, Austin, TX