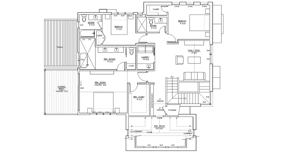
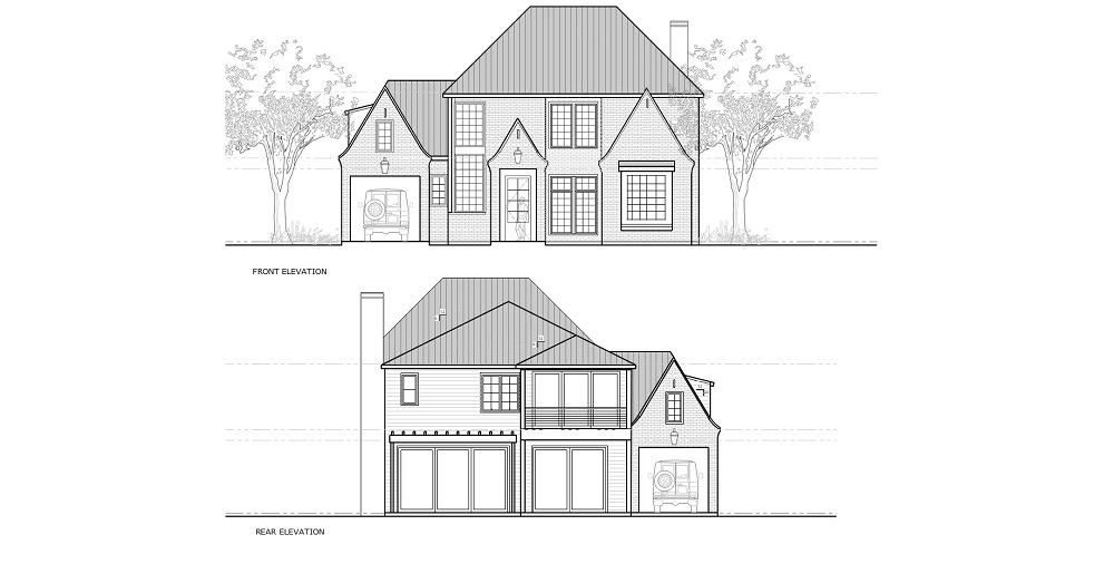
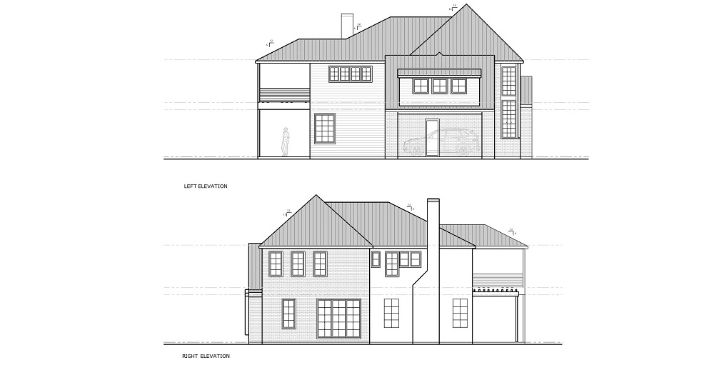
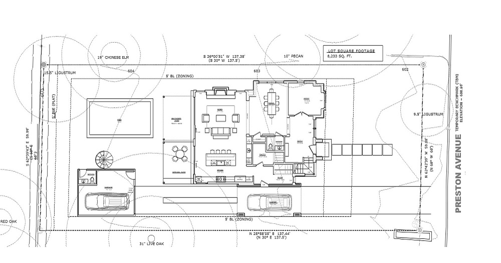
1610 Preston Ave., Austin, TX 78703 1610 Preston Ave., Austin, TX Click To Call 1610 Preston Avenue Price: $TBD Sq. Ft.: Beds: Baths: Parking: Pool: Additional : Completion Date: FollowFollow