1201 W 39th 1/2 St, Austin, TX 78756, USA

1201 39th 1/2 St. Unit A Austin TX

1201 39th 1/2 St Unit A

Price: $774,000
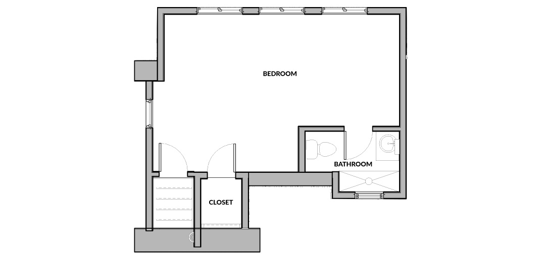
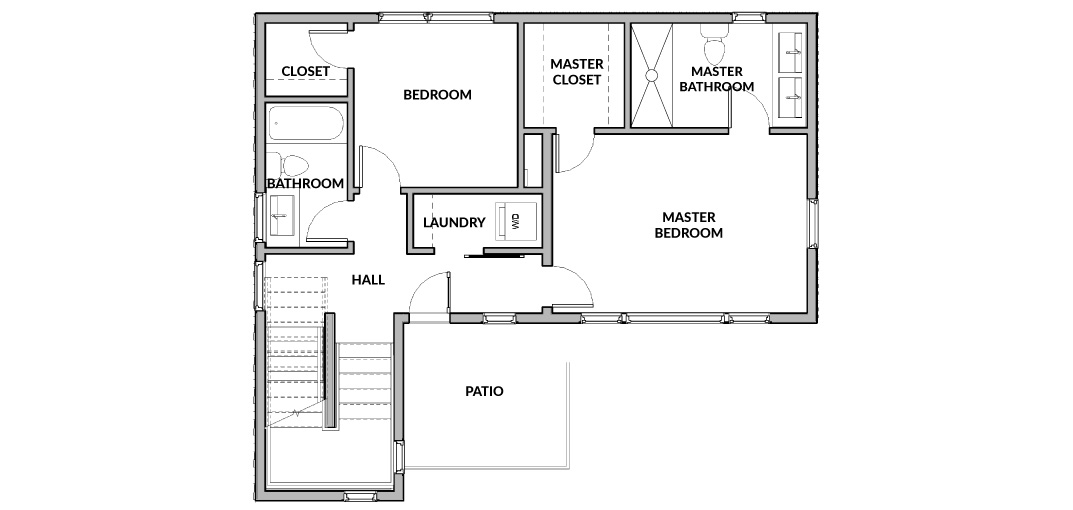
Sq. Ft.: 1775
Beds: 3
Baths: 3.5
Deck & Patio Sq. Ft.: 442
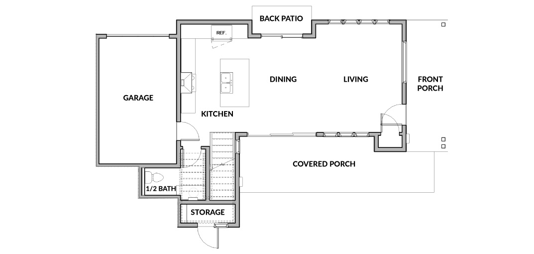
Parking: 1 Car Garage
Completion Date: Coming available 2019

Walkable to Snooze, Central Market, Kendra Scott, and much more! Gourmet kitchen, designer finishes, and advance-level technology HVAC systems make this dynamite unit unbeatable in the Rosedale neighborhood. Technically classified as attached (units connect on the first floor at the garage), this unit lives like single family. With nearly 1k SF of porch and patio, 2x6 exterior structure, and foam insulation your new home is both welcoming and efficient. Coming available 2018.

*Photos from comparable projects*

Terms and Conditions | Privacy Policy