1101 W 39th 1/2 St, Austin, TX 78756

1101 39th 1/2 St. Unit A Austin TX

[su_button url=”tel:5126400616″ target=”blank” style=”noise” background=”#CFD3D2″ color=”#000000″ size=”8″ wide=”yes” center=”yes” text_shadow=”1px 1px 0px #000000″]Click to call 512-640-0616[/su_button]

Designer Fixture Selections

See Our Designer Fixture Selections

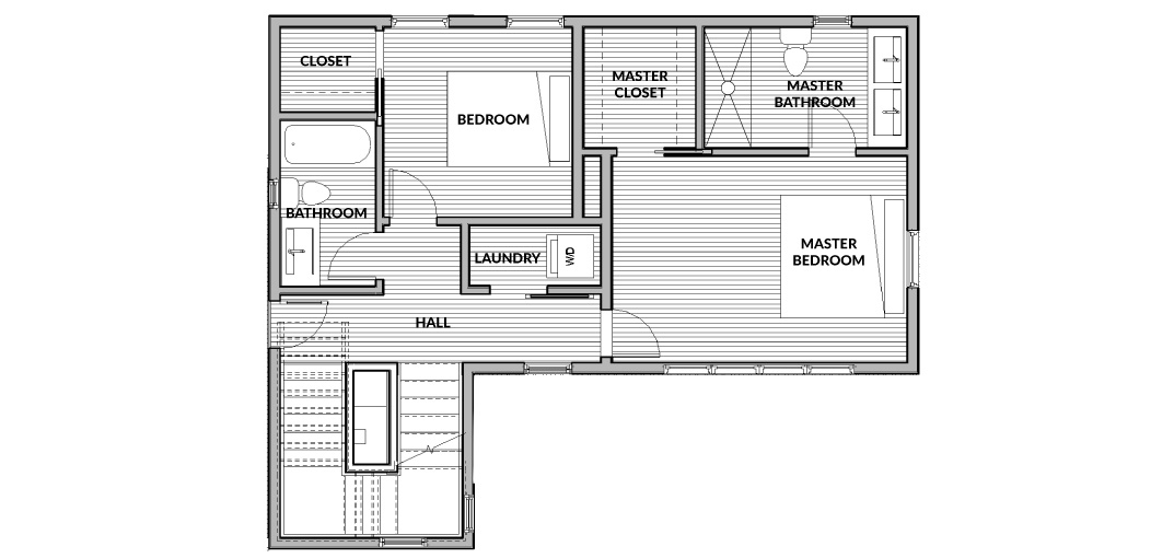
1101 39th 1/2 St Unit A

Price: $750-799,000
Sq. Ft.: 1829
Beds: 3
Baths: 3.5
Deck & Patio Sq. Ft.: 520
Parking: 1 Car Garage
Completion Date: July 2018

Walkable to Snooze, Central Market, Kendra Scott, and much more! Gourmet kitchen, designer finishes, and advance-level technology HVAC systems make this dynamite unit unbeatable in the Rosedale neighborhood. Technically classified as attached (units connect on the first floor at the garage), this unit lives like single family. With nearly 1k SF of porch and patio, 2x6 exterior structure, and foam insulation your new home is both welcoming and efficient. Coming available July 2018.

*Photos from comparable projects*

Terms and Conditions | Privacy Policy